- New spec suites delivering in early Q2 2026
- Recent renovations to main lobbies, common area, hallways and restrooms
- Brand new conference facility and outdoor terrace tenant amenities delivering in early Q2 2026
- Preferred tenant membership pricing at The St. James
- Café and daycare next door
- Flexible floorplans to accommodate all users
- Expansive windowline with panoramic views and abundant natural light
5500 Cherokee Avenue, Cherokee I
1,730 SF - 7,814 SF of Office Space Available in Alexandria, VA 22312
Property Highlights
Mollye Wheeler
Director of Leasing
Contact Mollye Wheeler for 5500 Cherokee Avenue, Cherokee I
All Available Spaces (4)
- Space Size Rental Rate Space Use Available
-
4th Floor, Ste 440
Size 2,778 SF Rental Rate $25.75 /SF/YR Space Use Office Available Now2nd generation spec office suite with glass suite entry door, direct elevator exposure, 6 windowed perimeter offices, reception area, conference room, expansive kitchenette, and large workroom plus flex room. Recently renovated common areas and restrooms. Can be combined with adjacent spec suite delivering in early Q2 2026
- Rate includes utilities, building services and property expenses
- Fits 7 - 22 People
- 1 Conference Room
- Reception Area
- Elevator Access
- Corner Space
- Secure Storage
- Emergency Lighting
- Professional Lease
- Second Generation Pre-Built Office Spec Suite
- Fully Built-Out as Standard Office
- 8 Private Offices
- Central Heating System
- Wi-Fi Connectivity
- Print/Copy Room
- High Ceilings
- After Hours HVAC Available
- Accent Lighting
- Wheelchair Accessible
- Rate includes utilities, building services and property expenses
-
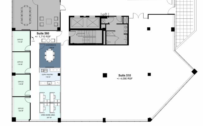
5th Floor, Ste 510
Size 5,850 SF Rental Rate $26.00 /SF/YR Space Use Office Available NowSuite 510 is a top floor office space with expansive windowline and direct access to the 5th floor outdoor terrace and building conference room tenant amenities. Subdivision opportunities down to +/- 2,500 SF to accommodate users with smaller footprints are available. Enhanced by recently renovated common areas and restrooms, Suite 510 can be combined with the adjacent spec suite delivering in early Q2 2026.
- Rate includes utilities, building services and property expenses
- Mostly Open Floor Plan Layout
- Partitioned Offices
- Can be combined with additional space(s) for up to 13,435 SF of adjacent space
- Reception Area
- Elevator Access
- Corner Space
- Secure Storage
- After Hours HVAC Available
- Accent Lighting
- Full Floor
- Fully Built-Out as Standard Office
- Fits 10 - 90 People
- Conference Rooms
- Central Air and Heating
- Wi-Fi Connectivity
- Print/Copy Room
- High Ceilings
- Natural Light
- Emergency Lighting
- Open-Plan
- Rate includes utilities, building services and property expenses
-
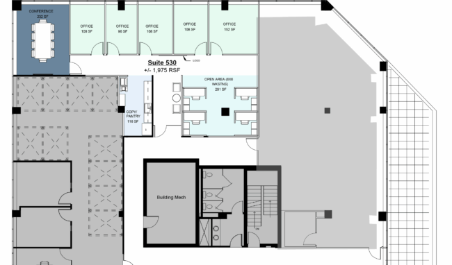
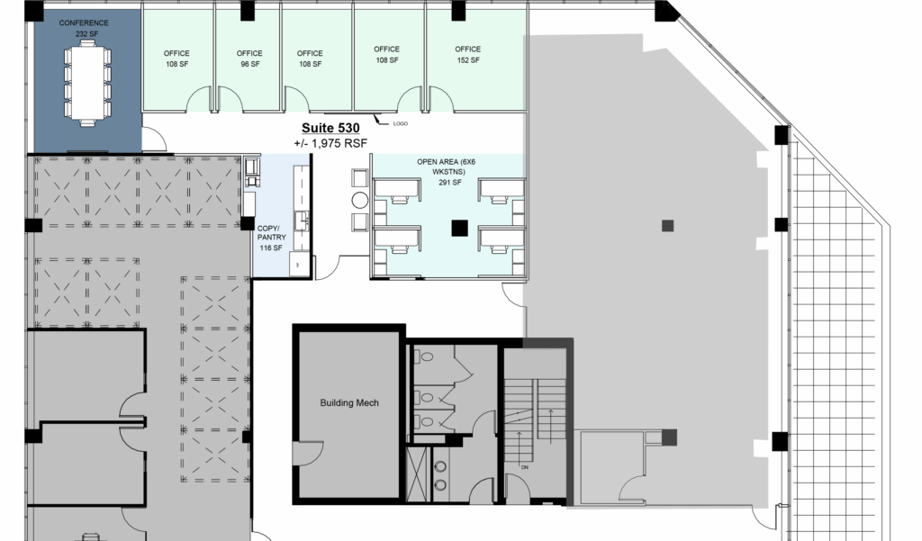
5th Floor, Ste 530
Size 1,964 SF Rental Rate $26.00 /SF/YR Space Use Office Available Q2 2026Delivering early Q2 2026, Spec Suite 530 features 5 private offices, a large corner conference room, an open work area, reception and pantry. Further enhancing Suite 530 is direct access to the 5th floor outdoor terrace and building conference room tenant amenities.
-
5th Floor, Ste 560
Size 1,730 SF Rental Rate $26.00 /SF/YR Space Use Office Available Q2 2026Delivering early Q2 2026, Spec Suite 560 features 4 private offices, a conference room, open work area, pantry/copy Room, and reception. Further enhancing Suite 560 is direct access to the 5th floor outdoor terrace and building conference room tenant amenities.